VITA BOLETIM 51035-BK TÉCNICO

CD3WD Project

Back to Home Page of CD3WD Project or Back to list of CD3WD Publications


Home - English - French - German - Italian - Portuguese - Spanish
             VITA BOLETIM TÉCNICO   51035-BK    
 
                EXTRATOR DE MEL CENTRÍFUGO
 
Este Boletim explica como construir um extrator de mel de madeira.
São colocadas urticárias de mel em dois containers.  com os que Estes são giradas
uma talha mechanism.  Thus, o mel é extraído por centrífugo
força.
 
Este extrator foi desenvolvido por afiliados de VITA na Nicarágua.
Foi construído desde então e foi usado prosperamente dentro vários
outros países.
 
VITA faz este material disponível para gerar idéias entre como
largo uma audiência como Leitores de possible.  deveria escrever para VITA aproximadamente
a experiência deles/delas com o design.  Please envia resultados de teste,
sugestões, e pedidos para informação adicional para:
 
              Boletins Técnicos
                       VITA
           1600 Bulevar de Wilson, Apartamento 500,
             Arlington, Virgínia 22209 E.U.A.
        TEL:  703/276-1800 * FAX:  703/243-1865
              Internet:   pr-info@vita.org
 
                                           Revised 1981 de agosto
                                            ISBN 0-86619-114-3
 
           VOLUNTEERS EM AJUDA TÉCNICA
 
             VITA BOLETINS TÉCNICOS
 
Este Boletim Técnico é um de uma série de
publicações que fazer-isto-lhe oferecem tecnologia
informação sobre uma variedade larga de assuntos.
 
Boletins técnicos são geradores de idéia, planejado,
não tanto prover uma resposta definitiva sobre
guie o usuário está pensando e Premissas de planning. 
está são e testando resultados são providas, se
disponível.
 
São pedidos para os usuários da informação que nos enviem o deles/delas
avaliações e comentários baseado nas experiências deles/delas.
Resultados estão incorporados em subseqüente
edições, provendo diretrizes adicionais assim para,
adaptação e usa em uma maior variedade de condições.
 
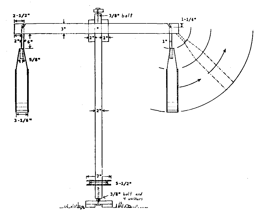
             EXTRATOR DE MEL CENTRÍFUGO
 
VITA oferece na Nicarágua construiu um simples, de madeira,
mel extractor.  Estes são dois braços de madeira dos que penduram abaixo
um brace.  horizontal que UMA caixa é prendida ao fim de cada braço.
Cada caixa segura urticárias de mel.
 
A cinta horizontal é prendida a um poste vertical.   There é
uma talha de madeira ao redor do fundo deste pole.  UMA corda ao redor
a talha também gira o pole.  Este movimento gira o horizontal
suporte, braços de madeira, e mel boxes.  força Centrífuga
faz as duas caixas subir e move outward.  Isto força o
mel para o fundo das caixas, donde é posterior
escavada fora.
 
<FIGURA 1>

47p01.gif (600x600)


 
Esta é uma visão de um extrator em posição estacionária.
 
<FIGURA 2>

47p02a.gif (600x600)


 
Visão do extrator rotativo enquanto em operação.
 
<FIGURA 3>

47p02b.gif (600x600)


 
As juntas simples para a sanefa horizontal e o de madeira
braço.
 
<FIGURA 4>

47p03a.gif (600x600)


 
A corda é prendida a um pedaço de borracha tubo interno que é
amarrada a um stake.  de madeira Isto cria a tensão necessária.
 
<FIGURA 5>

47p03b.gif (600x600)


 
A corda é embrulhada então ao redor de um pulley.  de madeira Esta talha
desígnio vem do Manual de Tecnologia de Aldeia de VITA.
 
<FIGURA 6>

47p04a.gif (600x600)


 
Puxe a corda uma distância curta e então deixe recoil.  O
extrator revolverá em uma direção.
 
<FIGURA 7>

47p04b.gif (600x600)


 
Erga as tampas das duas caixas de mel.
<FIGURA 8>

47p05a.gif (600x600)


 
<FIGURA 9>

47p06a.gif (600x600)


 
<FIGURA 10>

47p07.gif (600x600)


 
PONTOS PARA SE LEMBRAR
 
1.   A porção de topo do extrator deve estar muito segura para
    previnem bamboleio.   Attach que o sujeito telegrafa, como mostrada no diagrama.
    Also suportam o pedaço vertical com uma tábua prendida
    para um abrigo ou uma árvore, como mostrada.
 
2.   Attach a corda para um pedaço de pneu tube.  Tie interno o
    entubam pedaço com firmeza a uma espiga de madeira que foi dirigida
    fundo no chão.   que Este arranjo faz para a corda
    pulam atrás durante operação.
 
3.   As fotografias mostram algumas modificações das que diferem o
    drawing.  que Os " braços " prenderam à sanefa horizontal
    são mais longo que mostrada no desenho.   que Você deveria experimentar
    com comprimentos variados para ver que trabalha melhor.
 
4.   paradas Súbitas como a rotação reduzem a velocidade causará as caixas para
    empurram e batem no poste vertical.   Place ascensões de borracha
    ao redor do poste principal a pontos onde as caixas podem
    tocam o poste.
 
VITA também publica UM Guia de Apicultura, por Voluntário de VITA,
HARLAN H.D. Attfield que inclui a informação seguinte:
 
*   A Colônia de Abelha
*   que Que Abelhas Precisam Viver
* Colméias de  
 
   *  A Colméia de Langstroth
   *  A Newton Hive
   *  Urticárias Simples
 
*   do que Um pouco de Equipamento Simples Precisou para Apicultura
*   Como Passar Abelhas a Urticárias Novas
*   Inspecting a Colônia
*   Helping UMA Colônia Faz Mais Mel
*   O que fazer Antes do Honeyflow
*   O que fazer Durante o Honeyflow
*   Harvesting as Colheitas (Mel e Cera de abelha)
*   Appendix:  Espécies e Variedades de Abelhas
 
Para um catálogo grátis que lista isto e outras publicações de VITA,
escreva:
 
              VITA Publicações Serviço
              1815 Nortes Rua de Lynn, Apartamento, 200
              Arlington, Virgínia 22209-8438 E.U.A.
 
== == == == == == == == == == == == == == == == == == == ==
== == == == == == == == == == == == == == == == == == == ==
 

CD3WD Project Donate