Back to Home Page of CD3WD Project or Back to list of CD3WD Publications

Primera parte: Generalidades sobre el procesamiento de frutas y hortalizas a pequeña escala

Indice - Precedente - Siguiente

1. Descripción de las características básicas del recinto a usar
2. Detalle de los equipos e implementos necesarios para el centro
3. Diseño de la sala de proceso y ubicación de equipos
4. Asistencia en la instalación y puesta en marcha del sistema
5. Capacitación teórico-práctica del personal
6. Estructura de costos a considerar

Primera Parte

Introduccion

Este documento tiene por objetivo, entregar una visión general de las diversas posibilidades que existen para el procesamiento de frutas y hortalizas, y esta destinado a servir de apoyo y guía a todos aquellos grupos de personas que tienen la idea de estructurar empresas pequeñas o microempresas destinadas al aprovechamiento de aquellos recursos naturales de sus propias comunidades y que normalmente se pierden en cantidades importantes.

Este documento contiene diversos aspectos relacionados con la implementación de proyectos destinados al procesamiento de frutas y hortalizas.

De acuerdo a esto es que, se desarrollarán los siguientes puntos, los que se consideran de importancia para la instalación de una planta a pequeña escala.

1. Descripción de las características básicas del recinto a usar
2. Detalle de los equipos e implementos necesarios para el centro
3. Diseño de la sala de proceso y ubicación de equipos
4. Asistencia en la instalación y puesta en marcha del sistema
5. Capacitación teórico-práctica del personal involucrado
6. Estructura de costos a considerar

De acuerdo al análisis realizado, parece razonable dedicar este período a dos tipos fundamentales de procesamiento, las conservas en envases de vidrio y el jugo o pulpa natural pasteurizados y mermeladas.

De esta manera, todas las actividades de planificación y los detalles de las instalaciones básicas que se presentarán, así como el programa de capacitación para el personal estarán orientados a entregar los elementos básicos necesarios para desarrollar los procesos de conservas, jugos o pulpas naturales y mermeladas.

Antes de presentar un detalle de las características de las instalaciones y de los equipos necesarios para llevar a cabo el proceso, es recomendable establecer ciertos principios que deben tenerse en cuenta al enfrentar esta actividad.

Cuando se piensa en proceso artesanal normalmente se asume que existe en este tipo de actividad una especie de flexibilidad en relación a las normas básicas de eficiencia y dedicación, así como una libertad absoluta con respecto a la aplicación de las normas establecidas en cuanto a procedimiento, tiempo y lugar. Para el caso que nos preocupa esto no es válido, es más, es necesario tener muy claro que las normas de procedimiento que se establecerán no son recomendaciones de libre aplicación, sino reglas que permitirán llevar adelante el proceso con seguridad para los consumidores. Sólo aplicando estas normas de procedimiento se podrá tener la certeza de que los productos serán seguros para los consumidores.

Las reglas a las que se hace mención corresponden a normas de manipules de alimentos, de sanidad en las instalaciones y equipos de higiene en los recintos de preparación así como en los operarios del sistema.

La higiene de instalaciones y de personas deriva, o es una consecuencia, de su limpieza, de la mantención de todos los elementos que pueden estar cerca o en contacto con los alimentos en un estado sanitario óptimo. Paredes, pisos, cielos, servicios higiénicos, manos del personal, ropa del personal, son algunos de los elementos que resultan muy importantes en estas consideraciones.

Otro de los aspectos que es importante es que, en la mayoría de los casos la eficiencia técnico-económica es dejada un poco de lado en este tipo de actividad. El control de la materia prima que entra en relación al producto que sale, los detalles de çgastos en insumos de bajo monto, el tiempo del personal dedicado al proceso en cualquiera de sus etapas (planificación, producción, comercialización) es habitualmente un aporte no cuantificado. Todos estos puntos hacen de la actividad una muy interesante labor de entrega personal con muchas características de hobby. Sin embargo, esta situación se hace, por lo general, insostenible en el largo plazo.

Como esta es una actividad que se desea desarrollar en forma piloto, de modo de que ella pueda ser multiplicada en varios lugares de la Isla como una forma de propender al desarrollo de los productores, se debe entonces llevar a cabo con un espíritu de pequeña empresa, es decir, se debe manejar bajo las mínimas normas de eficiencia de una pequeña empresa. Por estas razones, se propondrá el desarrollo de un plan de producción donde los costos, la dedicación, el sistema de comercialización y su rentabilidad deberán ser variables conocidas del proyecto.

A continuación se procederá al desarrollo del programa de seis puntos teniendo en cuenta lo antes expuesto.

 

1. Descripción de las características básicas del recinto a usar

Uno de los aspectos principales que se deben tener en cuenta cuando se planifica una actividad relativa al procesamiento de alimentos, es que las condiciones ambientales en las cuales se realice sean adecuadas. Muchas de tales condiciones ambientales son el reflejo del sentido común, pero algunas de ellas resultan de un análisis técnico un poco más acabado.

1.1 Detalles de la Construcción

La planta física de un proyecto de esta naturaleza puede ser muy simple dadas las características de ser un sistema sencillo de producción, con volúmenes pequeños y con productos de gran simplicidad tecnológica.

Sin embargo, tanto en el caso de un sistema artesanal, como en un sistema de pequeña escala, la simplicidad no debe confundirse nunca con el descuido de los principios básicos que gobiernan la sanidad y la higiene industrial, que siempre debe rodear a un sistema de producción de alimentos.

En términos generales el recinto en el cual se desarrollarán las actividades de producción debe tener condiciones de fácil limpieza y sanitización. Esto significa que serán preferibles los pisos de hormigón o de baldosas, las paredes pintadas con esmaltes lavables, los cielos rasos simples y fáciles de limpiar. Idealmente debieran ser materiales livianos que no permitan la acumulación de elementos contaminantes como roedores, pájaros, o insectos. Siempre es mejor contar con condiciones de iluminación natural, pero en caso de que ello no sea posible, debiera contarse con una adecuada iluminación artificial. Esta iluminación artificial debiera estar protegida para evitar que puedan caer restos de ampolletas o tubos fluorescentes sobre el alimento que está preparando.

Un aspecto que se debe tener en cuenta es el de la ventilación. El recinto idealmente debiera ser bien ventilado, pero la calidad del aire de ventilación es un requisito a tener en cuenta. No es posible incorporar aire al recinto si este proviene de un ambiente contaminado por polvo, contaminantes gaseosos tóxicos, aire cargado de aromas extraños, etc. Por otra parte se debe tener presente que cada vez que entra aire a una habitación entrará con ese aire una cantidad importante de microorganismos que pueden ser, dependiendo el origen del aire, de muy variada naturaleza y trascendencia para el ser humano, desde los absolutamente vanales hasta algunos de alta incidencia económica como ciertos hongos causantes de pudriciones.

Es importante contar con servicios básicos de buena calidad, entre los que se deben incluir el agua en primer lugar y luego la energía eléctrica. Cuando se dice de buena calidad se refiere a que los servicios deben ser permanentes y en la cantidad requerida para permitir la incorporación de pequeños elementos eléctricos de gran ayuda a la producción artesanal.

Dentro de los servicios básicos, existe uno que es vital para el adecuado funcionamiento de una instalación de esta naturaleza. Se trata de los servicios higiénicos. Estos servicios que consideran tanto la parte de funciones fisiológicas normales como lo relativo al aseo personal, deben tener condiciones mínimas de funcionamiento que aseguren su uso adecuado. Un aspecto que se debe considerar en este sentido es que ningún servicio higiénico debe tener comunicación directa a la sala de proceso. Esto se debe a que se tiene que evitar que en caso de una inundación del recinto del balo las aguas del piso pasen al recinto de proceso causando una gran contaminación. Por tales razones, es aconsejable que el servicio higiénico tenga comunicación con el patio y que se encuentre a un nivel más bajo que la sala de proceso.

Finalmente, en esta descripción muy general de las características que debe cumplir un recinto de procesamiento, es conveniente dedicar algunas líneas a hablar del entorno. La sala de proceso debiera estar rodeada, idealmente, por un terreno que no cause contaminaciones. Son fuentes altamente contaminantes, los terrenos desnudos, los acumuladores de basura, los terrenos con vegetación silvestre abundante y descuidada, los recintos de crianza de animales domésticos, los lugares contiguos a fábricas con alto índice de contaminación aérea o acuática.

1.2 Secciones de la Planta

Aún cuando se trata de una pequeña instalación artesanal, esta infraestructura debe contar con los elementos necesarios para un trabajo ordenado y eficiente.

Los lugares donde se realizan las labores de producción, incluyen diversos procesos, desde la recepción y conservación de materias primas, hasta el almacenamiento de productos terminados.

Un aspecto que se debe tener presente es el de los detalles constructivos, altamente determinantes de la calidad de una planta física para cumplir con los objetivos de adecuarse a la producción de alimentos y al mismo tiempo tener un adecuado período de uso. Adicionalmente, cuando se trata de instalaciones para el procesamiento artesanal y de pequeña escala se debe considerar como un factor importante, el costo de construcción.

Los materiales de construcción deben ser en lo posible livianos, de fácil readaptación, de fácil instalación teniendo presente que, en muchos casos, son los propios usuarios del sistema los que desarrollan el proyecto mediante mecanismos de autoconstrucción. Cuando se habla de fácil readaptación, se refiere al hecho de que los sistemas artesanales, son bastante dinámicos, es decir requieren de frecuentes cambios u adaptaciones a procesos distintos, con el fin de lograr un aprovechamiento adecuado del espacio durante todo el año. Por otra parte estos sistemas normalmente se deben considerar crecedores, es decir, que permitan una evaluación en el tiempo.

Además de las características antes nombradas, se debe considerar que los materiales especialmente de la zona limpia de las salas de proceso, deben ser fáciles de limpiar y sanitizar. Debe evitarse la complejidad constructiva que conduzca a la formación de focos de difícil acceso a la limpieza que puedan constituirse en nidos de pájaros, focos de contaminación por roedores, insectos y, por supuesto, microorganismos.

Entre una instalación artesanal y una de pequeña escala, no existen grandes diferencias en los requerimientos en relación a los materiales y las características constructivas de los recintos, la diferencia fundamental radica en los equipos con que se cuenta y en la forma que ellos se disponen en las líneas de proceso. El sistema artesanal se caracteriza por su temporalidad, y por su versatilidad.

El sistema a pequeña escala ya tiene una mayor organización y existe por lo tanto una mayor comportamentalización especializada para ciertas labores particulares. Sin embargo, los requerimientos generales para ambos procesos son similares, siendo diferente la forma de implementar tales requisitos.

La idea general para este proyecto es la existencia de un recinto principal en el cual se desarrollará el proceso de producción desde la recepción hasta el envasado. Rodeando a este recinto principal debiera existir un conjunto de dependencias que puedan acomodarse para prestar los servicios auxiliares que se enumeran a continuación.

En primer lugar sería muy útil la existencia de un pequeño alero tipo galería, a la entrada de la sala principal, donde se pudiera almacenar en forma temporal la materia prima que fuera llegando a proceso. Este alero serviría para mantener la fruta protegida del sol y además para eliminar aquellas partes de la fruta que no se desea introducir a la sala de proceso por su volumen o por su naturaleza, por ejemplo, la vegetación de la piña, la que se puede cortar afuera inmediatamente antes de entrar a la sala, la que se puede cortar afuera inmediatamente antes de entrar a la sala. Sería deseable que este sector de la planta fuera de piso de cemento, pero en caso de no ser posible se pueda cubrir con tableros de madera adecuados para el fin. Otro recinto adicional es uno destinado a bodega de insumos, por una parte y de productos, por otra. Este recinto que puede ser uno solo dividido en dos mediante un cierre transparente de malla, debiera ser de piso de hormigón y paredes impermeables y ojalá resistentes al calor. En él se deberá guardar perfectamente controlado todo el stock de materiales e insumos para la producción y, por supuesto, los envases de producto debidamente etiquetados. Estas bodeguitas debieran ser de acceso restringido para un mejor control de los materiales.

Una instalación que requerirá de un espacio especial es la de calderos cocedores, es decir, las ollas destinadas a la pasteurización de los distintos productos que se obtendrán de la planta. Estas ollas deberán estar ubicadas externamente debido, fundamentalmente al combustible que usarían que puede ser incluso leña. La idea es comenzar con una olla para este fin que puede ser calentada por ges licuado, pero si la faena crece en dimensión, entonces se hará necesario el uso de otro combustible. Idealmente esta instalación debiera tener piso de piedra u hormigón, pero no es vital para la operación. Lo que resultaría conveniente sería un pequeño alero para proteger todo de la lluvia.

Por último, en las dependencias adiciones de la planta estarían los servicios higiénicos que deberían cumplir con todos los principios de sanidad e higiene mínimos para este tipo de servicios en una planta de alimentos. Esto incluiría, servicios de water, urinarios y lavamanos, todos funcionando en buen estado y con los utensilios de complemento necesarios. Entre estos últimos se pueden enumerar los depósitos de jabón, jabón desinfectante, secadores eléctricos de manos, papel higiénico, toallas de papel, etc.

En cuanto a la sala principal, donde se llevarán a cabo los procesos, debe cumplir con las características enumeradas en la descripción general. Además debe contar con una red de agua que permita contar con el fluido en todo momento y en todos los puntos de la sala. Su construcción debe ser de tal clase que permita el lavado de los pisos y su sanitización. El agua de lavado y de proceso de la sala debe ser fácilmente eliminable por las vías normales de evacuación. Es una condición importante que el agua de uso en el proceso como parte del alimento sea de condición de potabilidad adecuadas, lo cual se puede conseguir de dos formas generales, mediante el uso de agua potable de la red pública o el uso de agua de pozo profundo potabilizada en la planta.

En cuanto a sus dimensiones, una sala para el procesamiento de este tipo de productos no requiere de un tamaño muy grande, sin embargo, es necesario que el personal que trabaja allí tenga las facilidades mínimas de espacio para realizar las labores en forma expedita y sobre todo segura. Existen varias operaciones que requieren de un cierto nivel de seguridad por la naturaleza misma del trabajo. Es importante que el personal cuente con las condiciones que le aseguren un trabajo de calidad, pues jamás se debe olvidar que lo que allí se procesa es un alimento de consumo humano y no es poco frecuente que operaciones artesanales descuidadas sean la causa de importantes problemas de salud de los consumidores. Por otra parte, es importante tener en cuenta que ciertas operaciones por simples que se vean pueden causar serios daños a los operarios si ellas no se manejan con el cuidado necesario. Un ejemplo de lo antes dicho es el continuo manipulado de los jugos de algunas frutas tropicales o subtropicales como el caso de la piña o la papaya que poseen enzimas que son capaces de causar deteriores serios a la piel de los operarios. Incluso frutas aparentemente tan inofensivas como el melón son capaces de producir daño cutáneo severo. Por lo tanto se deben dar las facilidades a los operarios para lavar continuamente sus manos cuando manipulan estos productos.

 

2. Detalle de los equipos e implementos necesarios para el centro

A continuación se presentan los requerimientos para impartir un curso demostrativo para desarrollar microempresas agroindustriales para mujeres. Para ello , se detallarán los requerimientos mínimos para los locales donde se procesan materiales y el equipo necesario para llevar a cabo demostraciones de procesamiento de frutas y hotalizas. Esto es básico para el establecimiento de microempresas.

A. Especificaciones para construír/adaptar locales

• Un área para procesamiento (aprox. 5(10) x 10 m.), si fuera posible, equipada con un ventilador al techo y red para zancudos y una pieza de guardar para almacenar material de empaque, aditivos y productos terminados (4 x 4 m.). Abundante luz natural y artificial.
• Servicios fuera del área de procesamiento.
• Suministro eléctrico y tomas de electricidad, en lo posible, en cada pared del área de procesamiento.
• Lavaplatos doble, preferiblemente de acero inoxidable o esmaltado, con agua corriente.
• Fogón doble a gas con sus respectivos cilindros y reguladores, Na2 Como alternativa, se puede usar calefacción eléctrica, de parafina o leña.
• Agua potable (en el área de procesamiento y alrededores).
• Mesa de madera (aprox. 180 x 120 x 80 cm.), esmaltada o pintada, Na2 con cubierta de acero inoxidable.

B. Materiales

• Botellas con tapa para tapas metálicas "corona". Como alternativa, se pueden usar botellas de cerveza y bebidas desechables y/o retornables (aprox. 200-280 ml.), Na500-1000.
• Tapas "corona" de metal para botellas, Na2-5000.
• Frascos de vidrio (aprox.450 gr) con tapas rosca, Na500.
• Frascos de vidrio (aprox. 900 gr) con tapas rosca, Na200.
• Tapas rosca para frascos de diferentes tamaños.
• Etiquetas engomadas para botellas y frascos.
• Acido cítrico o jugo de limón.
• Polvo de pectina para uso alimenticio, 2 Kg.
• Azúcar refinada.
• Sacos harineros (aprox. 1m. x 0,5 m.) Na10.
• Benzoato de sodio para uso alimenticio, 1 Kg.
• Sorbato de potasio para uso alimenticio, 1 Kg.

C. Equipos

• Balanza (50 a 100 Kg.)
• Balanza (3 a 5 Kg.)
• Balanza (100 a 500 gr) Refractómetro manual (0 - 90 aBrix)
• Refractómetro (0 - 30 aBrix)
• Termómetro de acero inoxidable (0 a 150 aC)
• Olla de aluminio grueso (con capacidad de aprox. 50 lts.), Na2
• Olla de aluminio grueso (con capacidad de aprox. 10 lts.), Na2.
• Olla de aluminio grueso (con capacidad de aprox. 5 lts.), Na2.
• Tabla de madera (40 x 30 cm), para picar, Na10
• Cuchillo de acero inoxidable con hoja gruesa (15-20 cm. x 2 cm.), Na5
• Cuchillo de acero inoxidable con hoja gruesa (10 cm. x 1 cm.), Na5
• Coladores (25-20 cm de diámetro), con malla de aluminio, Na5
• Bandejas plásticas (40 x 60 x 5 cm.), Na5
• Balde de plástico (20 lts.), Na10
• Balde de plástico (10 lts.), Na10
• Embudo de plástico o de aluminio, 20 cm. de diámetro, Na2.
• Embudo de plástico o de aluminio, 15 cm. de diámetro, Na2.
• Cucharas de acero inoxidable de diferentes tamaños, Na3.
• Cuchara grande de plástico, No3.
• Cuchara mediana de madera, Na3.
• Cuchara grande de madera, Na3.
• Extractor/separador de pulpa manual, Na2
• Tapabotella manual para tapas corona, Na2
• Cajas plásticas agujereadas para fruta, para 18-20 Kg., Na5.

Para el caso específico de una planta semi-industrial, las ollas serán reemplazadas por marmitas, la fuente de calor estará dada por una caldera, habrá una prensa pequeña, y un autoclave. A continuación se presentan los equipos necesarios de instalar para una planta a pequeña escala:

a) Una caldera pequeña con una producción de 250 kilos de vapor.
b) Un autoclave.
c) Una despulpadora, la cual opera manualmente o con motor.
d) Una prensadora manual.
e) Un tapa botellas a presión.
f) Dos marmitas de doble fondo.

D. Materia Prima

Frutas y hortalizas en cantidad suficiente.

 

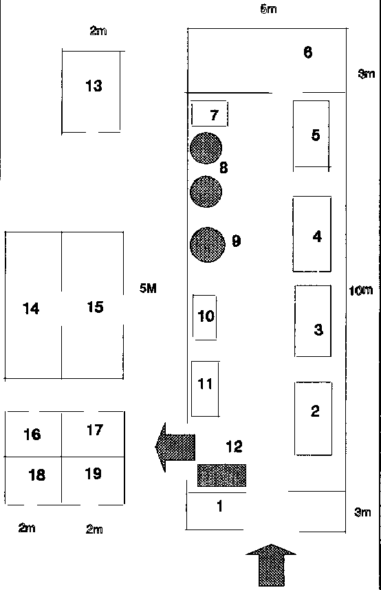
3. Diseño de la sala de proceso y ubicación de equipos

En el esquema de diseño que se acompaña, se puede observar la distribución que se propone para una sala piloto.

Se debe dejar en claro que esta es una aproximación a una línea adecuada a un proceso continuo que presenta una unidad.

La idea es que el material que entra a la sala de proceso no se acumule en ningún lugar, sino que permanezca en movimiento hasta que sale el producto. Esto es en líneas generales porque existen casos en que se deben preparar productos intermedios a partir de los cuales, en etapas sucesivas, se llega al producto final. En tales casos la acumulación debe realizarse de manera de no producir problemas de contaminación o acumulación de mugre que pueda atraer microorganismos, los que se desarrollarán muy bien en la mayoría de los residuos de alimentos.

En la situación que se presenta que se cuenta con una sala de pequeñas dimensiones, se debe tener mucho cuidado porque no es posible tener la adecuada división entre zona sucia y zona limpia de las plantas industriales medianas y grandes.

En estas pequeñas instalaciones artesanales, dichas áreas tienden a mezclarse y por lo tanto es muy posible que se produzcan contaminaciones de la zona sucia hacia la zona timpa donde se produce el manejo de las pulpas o el envasado.

Una forma de asegurar una relativa limpieza permanente y de minimizar los riesgos de contaminación, es la oportuna eliminación de los residuos, de los restos de fruta que van quedando en las diversas operaciones preliminares. De ser posible estas operaciones que son muy productoras de residuos, como el pelado, el deshojado y otras, debieran realizarse en un recinto especial fuera de la sala de procesos. Pueden realizarse en lo que constituye el alero de recepción, teniendo del cuidado de mantener condiciones adecuadas que eviten cualquier contaminación del material que va al interior, con sustancias extrañas, como tierra, insectos o restos de ellos, restos de la misma u otras plantas.

Es muy importante tener claro que la calidad de la materia prima dependerá en forma importante la calidad del producto final y por esta razón, se debe cuidar de mantener la naturaleza del material que llega a la planta, asumiendo que a su llegada, los atributos del mismo cumplen con los requerimientos para ser transformados en un alimento de consumo humano.

Así, una materia prima que llega para ser procesada, debe mantenerse en buenas condiciones, como ser a la sombra, sin mojarse, en recipientes limpios, donde no sufra maltrato físico, de manera de mantener la condición con que llegó. Por otra parte es importante entender que mientras más corto sea el tiempo que pase desde que llega hasta que es procesada, mejor es la condición de la fruta y otra materia prima presentará frente a las exigencias del proceso y mejor será la calidad del producto final. Las frutas y las hortalizas son materiales altamente sensibles a las condiciones ambientales y es por esto que se hace necesario controlar tales condiciones para evitar cambios importantes en ellas.

Distribución de Equipos en la Planta Procesadora

1) Sala de Recepción y Pesaje
2) Mesón de Selección y Calibraje
3) Tina de Lavado y Desinfección
4) Mesón de Pelado y Envasado
5) Despulpadora
6) Sala de Control de Calidad
7) Prensa
8) Marmitas Doble Fondo
9) Autoclave
10) Selladora
11) Mesón de Empaque y Rotulado
12) Lavaplatos Doble
13) Sala de Caldera
14) Bodega de Insumos
15) Bodega de Productos Terminados
16) Vestidores Hombres
17) Baños de Hombres
18) Vestidores Mujeres
19) Baños de Mujeres

LAY-OUT DE LA PLANTA (GENERAL)

La sala de proceso debe entonces tener condiciones adecuadas de ambiente, ventilación y espacio que permita evitar los problemas que se pueden presentar por exceso de temperatura y espacios muy estrechos donde no se puede acceder fácilmente con la limpieza.

 

4. Asistencia en la instalación y puesta en marcha del sistema

En relación a la construcción de la planta tienen importancia fundamental los siguientes factores.

a) Que el espacio de trabajo sea amplio y con techos elevados, sin que haya aglomeraciones de personal ni de equipo.
b) Buena iluminación de preferencia la instalación de tubos fluorescentes ya que estos alumbran más y son económicos.
c) Buen abastecimiento de agua, deberá disponerse de un abundante suministro de agua fría y caliente.
d) Instalación de cañerías, y eliminación de aguas residuales, con un adecuado tratamiento de decantación previo a la eliminación final en algun río o mar.
e) La instalación de los baños debe ser lejos de la planta con un sistema de eliminación de desechos a un pozo séptico y un sistema de eliminación de aguas residuales con cañerías independientes a las de la planta. La construcción de los baños deberá ser en un nivel inferior al de la planta para así evitar contaminaciones en caso de inundación de los baños.
f) La sala de caldera debe estar situada en una posición central, cerca de la linea de proceso, para reducir al mínimo la conducción de vapor.
g) Los materiales de construcción para el piso deberán ser de radiar con cemento para resistir la humedad y facilitar la limpieza de la planta. El piso se construirá con un pequeño desnivel y canaletos laterales para que facilite la eliminación de aguas de lavado de equipos y aseo de la planta.
h) La línea de proceso debe ser continua y tener un ancho de no más de 60 a 70 cm. de ancho aproximadamente y estar como mínimo a 80 cm. de distancia a la pared para que así puedan trabajar los operarios por ambos lados en los mesones y sea más fácil la operación de equipos y su limpieza.

 


Indice - Precedente - Siguiente

CD3WD Project Donate